Chinese mounting system manufacturer Chiko Solar Mounting Solutions is building a 50 MW solar PV facility at a fishery in Shuitian Town, Jishui County, Jiangxi Province, China.

“It is a project to support and strengthen the collective economy in Jishui County,” a company's spokesperson told pv magazine, noting that the plant is being built partly on water, where rice cultivation and fishery activities are carried out, and partly on agricultural land. “It maximizes land utilization.”
Construction on the unsubsidized project began in March and completion is scheduled for the end of this year. “Around 40% of the project is completed to date,” the spokesperson said. Overall, it is expected to occupy a surface of 530,000 m2 and to be built at a cost of RMB 220 million (US$33.9 million).

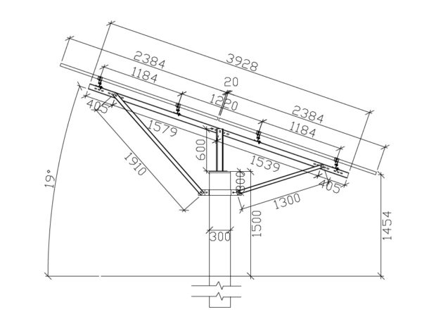
The solar plant comprises a mounting structure featuring a Zn–Al–Mg alloy (ZM) coating, which provides enhanced corrosion resistance and is usually used by Chiko Solar in fishery-solar hybrid projects. The panels are placed at a height of 1,454 mm from the water's surface.

Image: Chiko Solar Mounting Solutions
Chiko Solar said that the Jiangxi Province, like other eastern Chinese provinces, has been suffering from increasing land constraints in recent years and that projects such as the 50 MW facility in Shuitian Town may become more frequent in China's eastern regions in the future.
Currently, the largest PV plant built on a fishery in China is a 260 MW facility in Dangtu county, in the Chinese province of Anhui.
This content is protected by copyright and may not be reused. If you want to cooperate with us and would like to reuse some of our content, please contact: editors@pv-magazine.com.

2 comments
By submitting this form you agree to pv magazine using your data for the purposes of publishing your comment.
Your personal data will only be disclosed or otherwise transmitted to third parties for the purposes of spam filtering or if this is necessary for technical maintenance of the website. Any other transfer to third parties will not take place unless this is justified on the basis of applicable data protection regulations or if pv magazine is legally obliged to do so.
You may revoke this consent at any time with effect for the future, in which case your personal data will be deleted immediately. Otherwise, your data will be deleted if pv magazine has processed your request or the purpose of data storage is fulfilled.
Further information on data privacy can be found in our Data Protection Policy.